
距离团购结束:还有15天时间 106人已报名
129人已参加

2025-09-25
—— 兰江·璟园 ——东北师大附属中学旁 深圳16号线地铁口兰江集团 31载匠心精筑新规作品 赋新深圳人居约78-112㎡百变臻装高层 敬献时代新深派项目基础信息【开发商】深圳市兰江房地产开发集团有限公司&深圳市坪山金龟股份合作公...阅读全文>
钜惠单价
22051
元/m²
距结束
钜惠单价
22020
元/m²
距结束
钜惠单价
22053
元/m²
距结束
| 项目地址: 坪山区马峦街道沙新路与比亚迪路交汇处西北侧 | 开发商: 深圳市兰江房地产开发集团有限公司,深圳市坪山金龟股份合作公司 | 售楼处地址: 坪山区马峦街道沙新路与比亚迪路交汇处西北侧 |
| 物业公司: 暂无资料 | 开盘时间: | 交房时间: 2026-12-30 |
| 产权年限: 70年 | 物业类型: 普通住宅 | 车位情况: 300个 |
| 建筑类型: 塔楼 | 计划户数: 212户 | 占地面积: 8525.22㎡ |
| 物业费用: 暂无资料 | 建筑面积: 40300.83㎡ |
—— 兰江·璟园 ——
东北师大附属中学旁 深圳16号线地铁口
兰江集团 31载匠心精筑
新规作品 赋新深圳人居
约78-112㎡百变臻装高层 敬献时代新深派

项目基础信息
【开发商】深圳市兰江房地产开发集团有限公司&深圳市坪山金龟股份合作公司
【物业类型】70年住宅
【占地面积】约8525㎡
【建筑面积】约4万㎡
【楼层数】23层
【新规产品】约78-112㎡百变臻装高层
【容积率】3.04
【总栋数】2栋
【总户数】212户
【梯户比】2梯5户
【车位数】300个
【车位比】1:1.41
【绿化率】40.3%
【交付时间】2026年XX月(以合同为准)
必选兰江·璟园的十大理由

兰江集团,深耕深圳,布局全国,开发面积逾百万平方米。秉承“创新品质生活体系”理念,打造兰江·璟园升级新规作品,定制新深派青年的理想生活范本。


深圳向东,坪山崛起,坪山高新园区,作为深圳国家高新区 “两核” 之一写入十四五规划蓝图,未来深圳“东部科创引擎”,积极融入“全球创新圈”,打造深圳发展新能极。





社区自带约4600㎡商业综合体,近享悦邻Space、龙坪天虹、益田假日世界中心区等五大商圈,咫尺繁华生活场。

约900m即达深圳东部会展地标燕子湖国际会展中心,约1.1km即达深圳自然博物馆(总投资约43亿,建设中)、约3km投资约10亿被誉为“第二个市民中心”的坪山文化聚落,三大人文配套,浸润人文气息。

注:上述信息来源于深圳坪山燕子湖国际会展中心官网、深圳自然博物馆官微、坪山文化聚落官微;上述距离来源于百度地图直线距离测算。

背靠马峦山,近邻坪山河,紧靠坪山区两大饮用水源大山陂水库、赤坳水库,约800m即达瑞景公园,5km范围内坐拥6大生态公园, 尽享健康生活。

南方医科大学深圳口腔医院(坪山),深圳市坪山区人民医院,深圳市第四人民医院(深圳市萨米医疗中心),三大公立医院守护,健康生活有“医靠”。
注:上述距离来源于百度地图直线距离测算。

配建公立幼儿园,一路之隔即东纵小学、东北师范大学附属中学深圳学校,毗邻省一级坪山第二小学、省一级坪山中学、坪山区第二外国语学校、树人实验学校四大学府。

注:本信息仅供宣传不作为入学承诺。关于项目周边幼儿园,学校等教育配套资源的信息来源于深圳教育局官网。

超40%绿化率,打造“一轴双区”的布局,规划11大核心景观空间,林下会客厅、景观廊架、露营大草坪等,营造新深派青年的假日酒店式园林。


规划打造新深派青年棋牌室、健身房、休闲活动区、度假式休闲会客空间、儿童活动区5大创客空间,让老中青幼各有所乐,打造新深派青年的全龄乐活场。


建面约78-112㎡进阶新规作品,全户型大飘窗+大阳台配置,兼顾朝向、布局、采光的科学搭配,实现超高得房率。深圳罕有3.04超低容积率,23层小高层设计,两梯五户舒适梯户比,为新深派青年定制理想低密舒居范本。


全国首批房屋建筑工程施工总承包特级资质企业之一,中国企业500强,先后获24项鲁班奖、21项国家优质工程,多次被授予“全国优秀施工企业” “全国工程建设质量管理优秀企业”等荣誉称号,国企精工筑就品质人居。

【新规户型鉴赏】
【A户型】
建面约112㎡ 四房两厅两卫

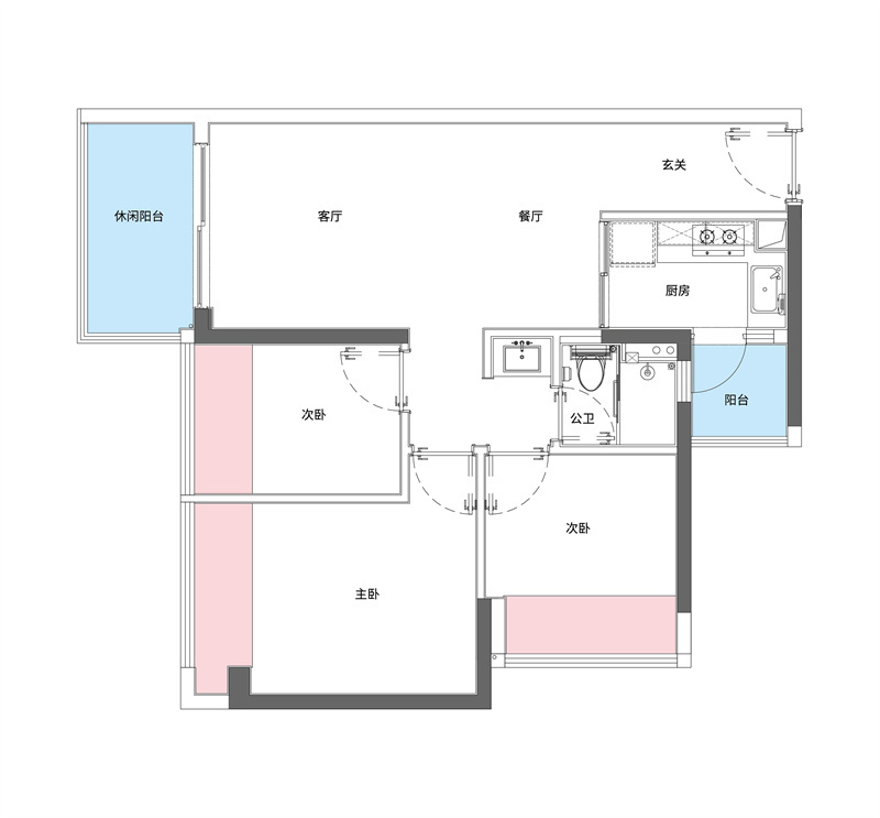
【B户型】
建面约88㎡ 三房两厅两卫

【C户型】
建面约78㎡ 三房两厅一卫

您的姓名 已有119人成功报名团购
计算结果